Extension en bois d'une maison d'habitation
Extension / Division de la maison d'habitation en deux logements - Co-living avec espaces extérieurs partagés
Lieu : Puy-de-Dôme | Auvergne | France
Maîtrise d’ouvrage : privée
Programme : Extension d’une maison d’habitation – Co-living avec espaces extérieurs partagés
Surface : Existant 132m² + Extension 58m²
Calendrier : Esquisse – APS/APD , 2024
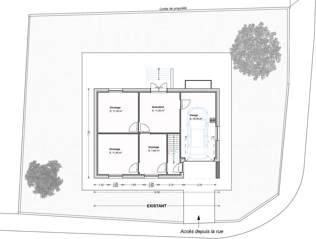
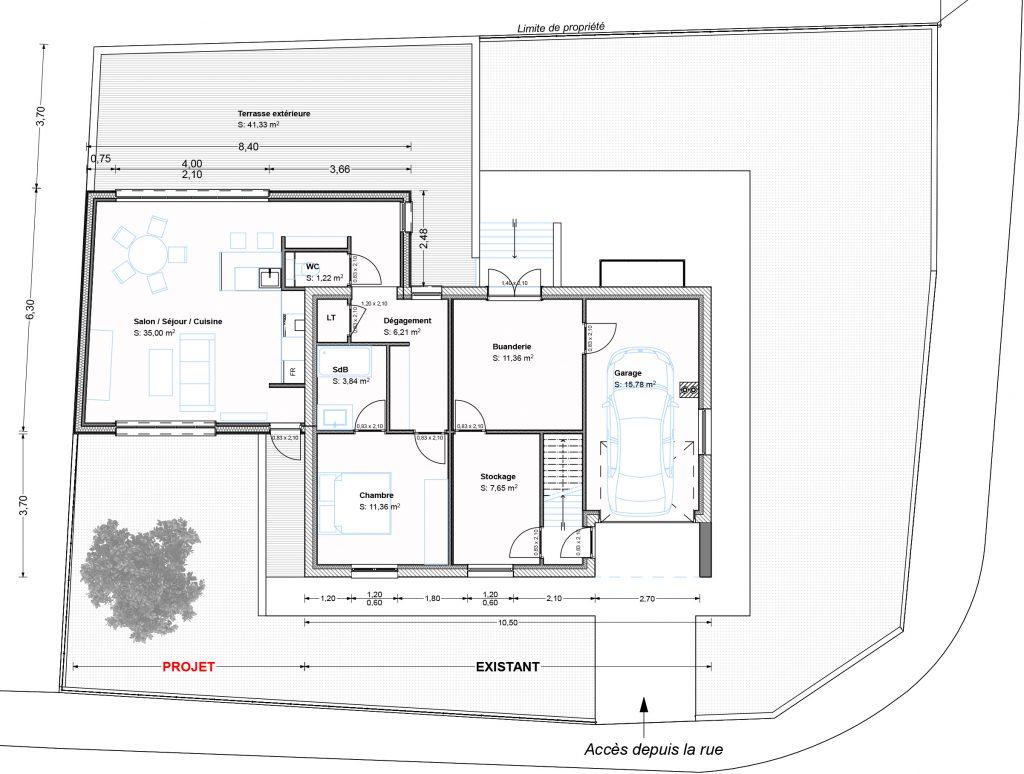
Située dans une commune au sud de l’agglomération clermontoise, cette maison individuelle des année 1970 est occupée par une dame vivant seule. La maison étant devenue trop grande pour elle seule, elle n’occupe aujourd’hui quasiment que l’étage de la maison sur lequel on y retrouve un salon / salle à manger, une cuisine, un espace bain / WC, 2 chambres et un bureau ; largement suffisant pour son habitude de vie. Pour se sentir moins seule, avoir un complément de revenus, nous avons réfléchi au moyen de créer une extension pour qu’elle puisse accueillir un locataire. Néanmoins, elle souhaite continuer d’avoir accès à son garage, sa buanderie et un espace où elle range toutes ses affaires. Le projet propose de composer entre l’existant avec des pièces dont elle n’a plus l’utilité et une partie neuve qui permet d’accueillir le reste du programme.
La création d’une extension de 58m² permet d’obtenir :
– un salon / séjour / cuisine : 35m²
– une salle de bain 3,8m²
– une chambre de 11,4m²
Une grande terrasse dans le prolongement du salon / séjour vient prendre place délimitée par un mur en pierre. Ce logement convient à un jeune couple sans enfant ou à une personne seule. Le jardin est partagé entre les deux logements.
Pour ce projet, le choix s’est portée sur un bâtiment en ossature bois + isolation des murs en laine de bois.
Niveau RDC - Existant
