Refuge Côté Rivage
Avre de paix au bord de l'eau
Lieu : Corrèze | France
Maîtrise d’ouvrage : privée
Programme : Création d’une maison de vacances
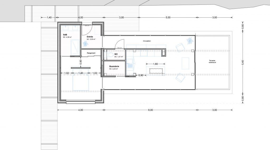
Surface : 210m²
Calendrier : Etudes en cours, 2024
Au cœur du plateau de Millevaches, ce couple souhaitait se créer un avre de paix au bord d’un lac privé pour se ressourcer au milieu de la nature. Ce lieu unique combine harmonieusement l’élégance des lignes horizontales avec la beauté naturelle de son environnement. Notre vision repose sur la fusion entre l’architecture contemporaine et le paysage environnant. Les lignes horizontales de la maison s’intègrent parfaitement dans le cadre naturel, offrant une continuité visuelle apaisante qui se fond dans les contours de la forêt.
Les larges baies vitrées permettent une immersion totale dans la nature environnante, offrant des vues imprenables sur le lac et la canopée luxuriante des arbres.
L’agencement intérieur privilégie les espaces ouverts et lumineux, favorisant la connexion avec l’extérieur. Les zones de vie sont conçues pour être à la fois fonctionnelles et accueillantes, offrant un cadre idéal pour se ressourcer en famille ou entre amis.
En quête de tranquillité, d’aventure en plein air ou simplement d’un refuge loin de l’agitation urbaine, cette maison au bord de l’eau dans la forêt est l’endroit parfait pour créer des souvenirs inoubliables et se reconnecter avec la nature.
Niveau RDC
