ORéADE

Rénovation d'une ferme traditionnelle auvergnate

Lieu : Puy-de-Dôme | France

Maîtrise d’ouvrage : privée

Programme : Rénovation d’une ferme traditionnelle auvergnate en habitation

Surface : 210m²

Calendrier : chantier en cours, 2023

Située sur le plateau de l’Artense, sur les contreforts des montagnes du Massif du Sancy, dans le Puy-de-Dôme, cette ferme traditionnelle auvergnate du début du XIXème siècle a traversé les années. Elle restera à partir de 1991 inhabitée pendant plus de dix ans. Perchée à 850m d’altitude, ni le vent, la neige ou encore le froid n’affectera son état général. Les habitations traditionnelles auvergnates sont le plus souvent des constructions compacts afin de se protéger des rigueurs du climat. Elles se composent d’un seul bâtiment dans lequel se retrouvent les hommes et les animaux dans la partie du rez-de-chaussée. Une vaste pièce, le plus souvent éclairée par une fenêtre unique sert à tous les usages. On y retrouve le foyer et généralement une grande table en bois accompagnée de bancs. Juste derrière, dans le prolongement du bâti, la partie de l’étable s’ouvre sur le pignon occidentale par une porte basse. A l’étage, on retrouve la grange, essentielle pour stocker l’alimentation du bétail. Parfois, des bâtiments ont été accolés. Ils servent de remise ou permettent d’y mettre d’autres animaux (cochons, ânes…). La Maison de La Plate est l’une de ces fermes-blocs qui témoignent aujourd’hui d’une époque vécue avec courage, volonté et rigueur. On retrouve également, à proximité de la maison, un ancien four banal. Traditionnellement, les fours à pain étaient communaux. On a ici la chance d’avoir un four à pain privatif. 
Le mode de vie d’aujourd’hui ne correspond pas à l’agencement de la maison. La réhabilitation de cette ferme traditionnelle auvergnate s’inscrit dans une démarche respectueuse du bâti avec la volonté pour le propriétaire de ne pas dénaturer le lieu. L’emploi de techniques anciennes, l’équilibre entre le plein et le vide, la mise en œuvre de matériaux locaux, sont autant d’éléments qui ont guidé le projet, pour faire de cette maison un lieu singulier et rempli d’histoire. 

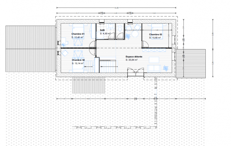
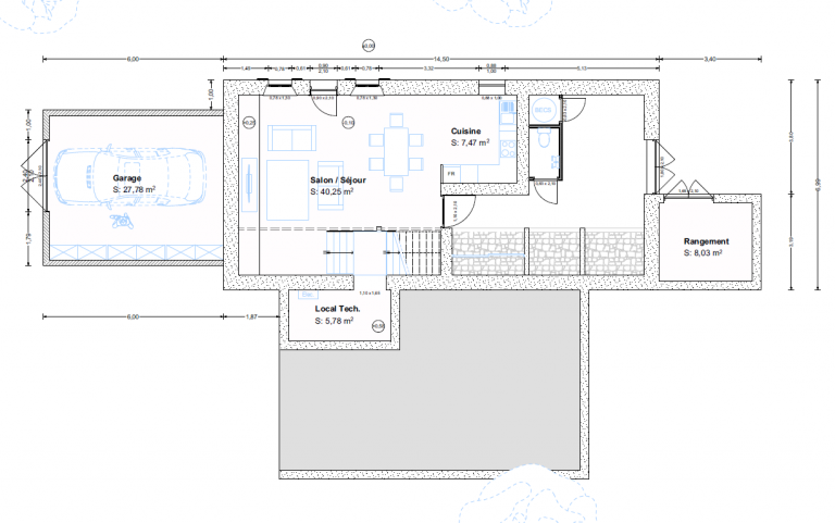
Niveau RDC
Niveau R+1
Retour en haut